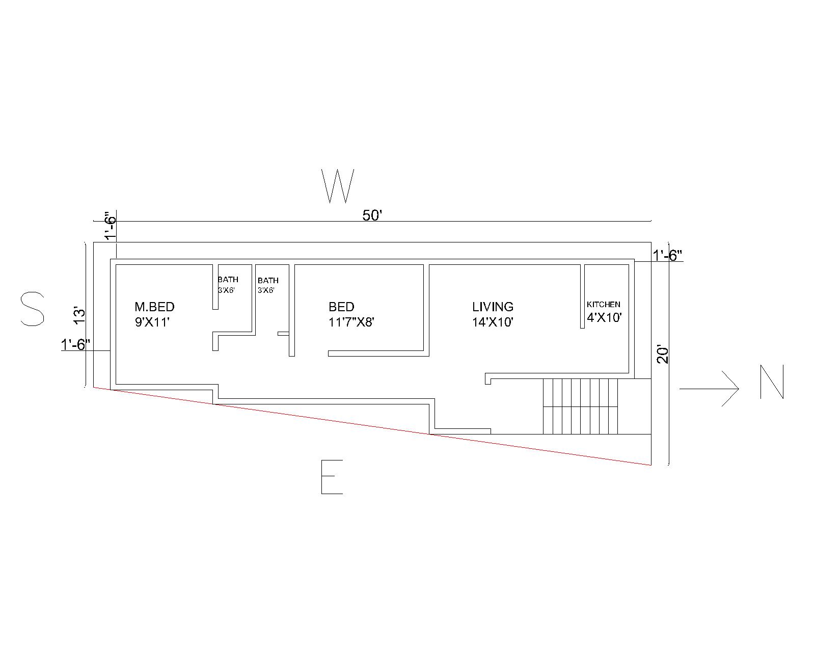
THIS IS EAST FACING ODD SITE
WITH DIMENSIONS
NORTH TO SOUTH : 50'
EAST TO WEST ON SOUTH SIDE 13'
EAST TO WEST ON NORTH SIDE 20'
TOTAL OF 825 SQFT
HERE I HAVE MADE A 2 BHK HOUSE PLAN
WITH SETBACK ALL AROUND OF 1'6" ON ALL THREE SIDES
IN THE FRONT I HAVE TAKEN TO ROAD IN SUCH A WAY THAT ALL ROOMS IN THE HOUSE COMES EITHER IN SQUARE OR RECTANGLE FORM
THE MAIN DOOR IS PLACED TO NORTH FACING
MASTER BED IS IN SOUTH WEST
BATH ROOMS ARE IN WEST
BEDROOM IS IN WEST
LIVING ROOM IS IN CENTRE OF EAST
KITCHEN IS IN NORTH WEST SIDE
BECAUSE OF THE ODD SITE AND SPACE CONSTRAIN I HAVE MADE IT IN THIS FORM.
WITH DIMENSIONS
NORTH TO SOUTH : 50'
EAST TO WEST ON SOUTH SIDE 13'
EAST TO WEST ON NORTH SIDE 20'
TOTAL OF 825 SQFT
HERE I HAVE MADE A 2 BHK HOUSE PLAN
WITH SETBACK ALL AROUND OF 1'6" ON ALL THREE SIDES
IN THE FRONT I HAVE TAKEN TO ROAD IN SUCH A WAY THAT ALL ROOMS IN THE HOUSE COMES EITHER IN SQUARE OR RECTANGLE FORM
THE MAIN DOOR IS PLACED TO NORTH FACING
MASTER BED IS IN SOUTH WEST
BATH ROOMS ARE IN WEST
BEDROOM IS IN WEST
LIVING ROOM IS IN CENTRE OF EAST
KITCHEN IS IN NORTH WEST SIDE
BECAUSE OF THE ODD SITE AND SPACE CONSTRAIN I HAVE MADE IT IN THIS FORM.

No comments:
Post a Comment